Retour
Terrain
Waldbredimus
Luxembourg - BR 11259-07
Prix: 609.600 €

5,08 are(s)

Disponibilité : de suite

Descriptif


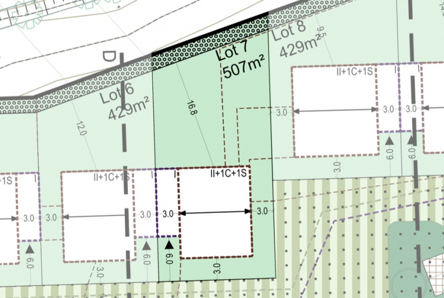
TERRAIN À BÂTIR VIABILISÉ – LOTISSEMENT « ROUTSTËCK » À WALDBREDIMUS

Vous rêvez de construire la maison idéale pour votre famille, selon vos envies et à votre rythme ?

Au cœur du nouveau lotissement résidentiel « Routstëck » à Waldbredimus, dans un environnement calme et verdoyant, BRICKS vous propose en exclusivité un terrain à bâtir entièrement viabilisé, offrant une opportunité rare de réaliser un projet de vie sur mesure.

LOT 07 – 5,08 ares (cadastre 460/5044)

SANS CONTRAT DE CONSTRUCTION

Ce terrain vous permet de concevoir librement votre future maison familiale, en choisissant vos architectes et entreprises, sans dépendre d’un promoteur. Une liberté précieuse pour créer un habitat qui vous ressemble, parfaitement adapté à vos besoins et à votre budget.

Caractéristiques :

  • Terrain entièrement viabilisé (voirie et raccordements techniques prêts)
  • Maison unifamiliale 4 façades, jumelée uniquement par le garage
  • Potentiel d’environ 230 m² habitables
  • Possibilité de 5 chambres ou plus
  • Exposition sud-ouest, sans vis-à-vis, entouré de paysages verts non-constructibles à 270 dégrés
  • Environnement résidentiel calme et verdoyant

Une fiche technique détaillée avec l’ensemble des paramètres de construction est disponible sur simple demande.


UN CADRE DE VIE PRIVILÉGIÉ

Situé dans la commune de Waldbredimus (Bous-Waldbredimus), ce terrain bénéficie d’un cadre naturel préservé, entre la vallée de la Moselle et la Ville de Luxembourg.

Le village séduit par son cadre paisible, sa faible densité d’habitation et ses paysages vallonnés, offrant un environnement idéal pour une vie de famille sereine, tout en restant proche des principaux centres d’activité.

Distances :

  • Luxembourg-Ville : ±20 min
  • Kirchberg / Cloche d’Or : ±20 min
  • Aéroport du Findel : ±15 min
  • Frontière allemande : ±10 min
  • Frontière française : ±20 min

La commune dispose également de bonnes infrastructures, écoles et transports publics, garantissant confort et accessibilité au quotidien.


Prix : 609.600 €

Pour plus d’informations ou pour recevoir la documentation complète :
+352 26 44 11 61
info@bricks.lu

BRICKS – Excellence in Real Estate

Spécifications


Ce bien m'interesse
Une erreur est survenue lors de l’envoi du formulaire, veuillez vérifier vos informations.
Merci. Votre demande a été enregistrée, nous vous recontacterons dans les plus brefs délais.






Envoyer
Contactez-nous au
(+352) 26 44 11 61